Colorado House

This post is for following the construction of our home in Grand Junction, CO
It all started with finding and buying one of the few lots at Spyglass Ridge that has the view I would have wanted. We were able to buy Lot 174 which had been combined with lot 173 to create a new mini subdivision. This turned out to be an incredible headache for the sellers to be allowed to sell it to us. But we did close on our land on June 5th. Our backyard will overlook the Grand Valley with Mt Garfield to the NE.

My goal for finding a house in Grand Junction was always to have a glimpse of Mt Garfield. Ever since I lived in Palisade during my stint with Union Oil during the Oil Shale Boom and Bust of the early eighties I have had a connection with this mountain and the Grand Valley. This opportunity for Pam & I to live out the rest of our lives overlooking and being a part of this valley seems like the icing on the cake for a wonderful life. I believe this move to Grand Junction will be my 29th move.

Construction
Construction Updates, construction began the week of August 28, 2023. Micropiles were completed on 9/14, there are 41 30 ft micropiles. Foundation was poured on Halloween. Framing began on November 29, 2023.
Foundation
Framing

Plumbing, Gas & HVAC








Exterior










Interior
Finished House



Subdivision





Views from our Lot NW, N, NE, E and South


Hiking Trails
Spyglass Ridge has developed excellent hiking trails around the subdivision. Here are a couple of hikes I have documented from our house.
Overlook & River Ridge Trail








Liberty View – Secret Canyon Trail













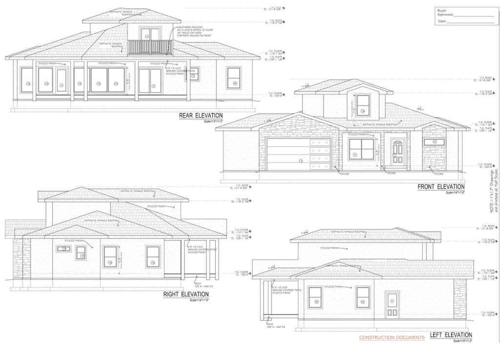
The focus of the house is on the back side with the view of the valley.
Our builder was great working with us to utilize large windows and create a large covered patio along with a nice open deck off of the upstairs bedroom.





Posted on April 1, 2023, in Colorado, Grand Valley and tagged Grand Junction, Home Construction, Integrity Homes, Spyglass Ridge. Bookmark the permalink. 2 Comments.








































I think it’s amazing Greg, that you can see your “touched by” Mt. Garfield from your land in Colorado!! I love that you and Pam will live out the rest of your lives in Grand Junction! You two are blessed by our wonderful God! My prayers will always be with you and Pam. 😊
Pingback: Life Transition – Trailer | The Adventure Continues